Проект 10-12-14 №489

Цена строительства от 7 900 000 ₽* * Стоимость не является окончательной
Заявка на консультацию
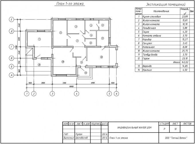
  • Общая площадь 158 м2
  • Длина 19.4 м
  • Ширина 12.2 м
  • Материал стен Газобетон/пеноблок
  • Количество этажей 1
  • Подвал Нет
  • Мансарда без мансарды
  • Гараж Да
  • Терраса Да
  • Проживание Круглогодичное
  • Количество комнат 6
  • Количество спален 3
  • Количество санузлов 1
  • Вид проекта дом
  • Застройщик ТЁПЛЫЙ БЕТОН
  • Отделка фасада Комбинированная
  • Крыша Двускатная
  • Можно купить домокомплект Нет
  • Модульный тип строения Нет
Планировки
Описание проекта

Гармоничная планировка и максимальное использование полезной площади - вот основные преимущества дома по Проекту 10-12-14. Отличное сочетание комфорта и функциональности обеспечивает достаточно пространства для жизни и удовлетворения потребностей каждого члена семьи.

Комплектация

  • Фундамент свайный с ростверком или плита;
  • Септик;
  • Стены из полистиролбетона (блоки или блоки в сочетании с монолитной заливкой в несъемную опалубку);
  • Внешняя отделка стен: кирпич в сочетании с панелями;
  • Пол: ж/б пустотные плиты перекрытия. Теплые полы без финишного покрытия;
  • Кровля скатная утепленная, мансардного типа. Покрытие - гибкая черепица или металлочерепица;
  • Водоснабжение: выполнен вод труб, подведены к точкам водоразбора;
  • Электромонтаж: выполнен ввод до щитка без дальнейшей разводки по помещениям.

Окна, двери, инженерия, стяжка и штукатурка при необходимости выполняются по дополнительному соглашению.

Стоимость может корректироваться в зависимости от выбранных отделочных материалов (кирпич облицовочный, кровельное покрытие) и от расположения объекта строительства.


Выбор местоположения

Задать вопрос / написать нам

E-mail: domgis@mail.ru

Мы свяжемся с Вами в течение дня.

Тех. поддержка
Предмет обращения:
Тукущая страница

Мы свяжемся с Вами в течение дня.

Уведомление
Предмет обращения:
Тукущая страница
Обратный звонок
Обратный звонок
Выберите ваш город
Пожаловаться

Объявление опубликовано.
Изменения сохранены

Период публикации - бессрочный, при условии подтверждения актуальности каждые 50 дней. Уведомления будут отправляться на Вашу электронную почту.

Выберите причину снятия с публикации

Снятые с публикации объявления не участвуют в поиске и недоступны для подробного просмотра.

Для повторной публикации нажмите «Вернуть в публикацию»