Это преднапиленный конструктор дома, который включает в себя прежде всего комплект для сборки деревянного каркаса, состоящий из нескольких элементов:
■ Сращенная строганная доска
■ Стойки
■ Обвязки
■ Ригели
■ Лаги
■ Балки
■ Стропила, прогоны и пр.
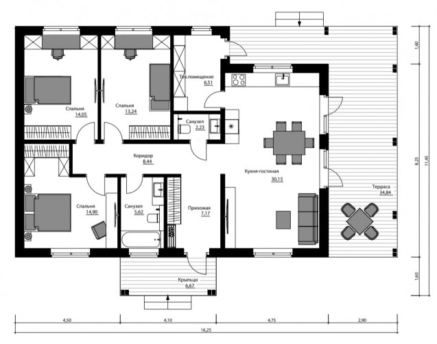
Просторный и стильный дом площадью 144 м2, где каждая деталь продумана для вашего комфорта. Главная изюминка — мастер-спальня с гардеробной, создающая уютное приватное пространство.
Две дополнительные спальни, светлая кухня-гостиная и просторная прихожая формируют гармоничное пространство для жизни. Два санузла и техническое помещение добавляют удобства, а уютная терраса станет идеальным местом для отдыха на свежем воздухе.
Выбор местоположения
Мы свяжемся с Вами в течение дня.