Это преднапиленный конструктор дома, который включает в себя прежде всего комплект для сборки деревянного каркаса, состоящий из нескольких элементов:
■ Сращенная строганная доска
■ Стойки
■ Обвязки
■ Ригели
■ Лаги
■ Балки
■ Стропила, прогоны и пр.
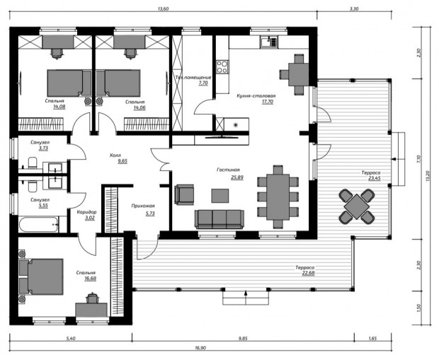
Вместительный каркасный дом общей площадью 169 м2. Просторная планировка включает 3 уютные спальни, большую гостиную с выходом на террасу, функциональную кухню-столовую и прихожую, переходящую в холл. Вход в дом оформлен через уютное крыльцо-террасу, где можно наслаждаться отдыхом на свежем воздухе. Два санузла обеспечивают комфорт для всей семьи, а техническое помещение позволяет удобно разместить коммуникации и бытовую технику.
Выбор местоположения
Мы свяжемся с Вами в течение дня.