Воробьево №437

Цена строительства от 3 623 000 ₽* * Стоимость не является окончательной
Заявка на консультацию
  • Общая площадь 118 м2
  • Длина 11 м
  • Ширина 7.5 м
  • Материал стен Каркасно-панельные
  • Количество этажей 1
  • Подвал Нет
  • Мансарда Имеется
  • Гараж Нет
  • Терраса Да
  • Проживание Круглогодичное
  • Количество комнат 5
  • Количество спален 4
  • Количество санузлов 2
  • Вид проекта дом
  • Застройщик МАЛОЭТАЖНЫЕ ДОМА
  • Архитектурный стиль Классический
  • Отделка фасада Комбинированная
  • Крыша Двускатная
  • Можно купить домокомплект Нет
  • Модульный тип строения Да
Планировки
Описание проекта

Проект «Воробьево» - это уютный мансардный дом из СИП панелей с 4-мя спальнями, террасой и крыльцом. Такой дом прекрасно подойдет для достаточно большой семьи и каждому тут найдется свой уголок.

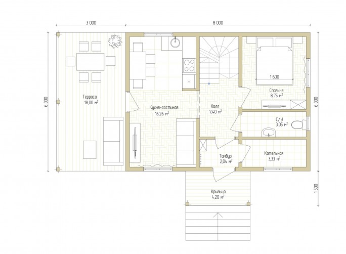
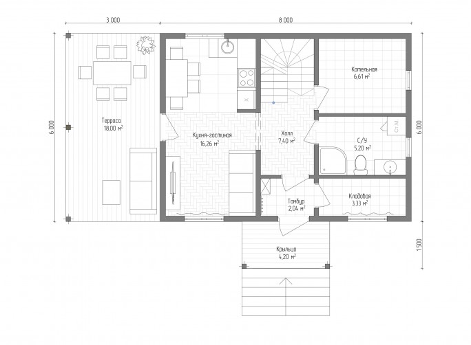
В дом реализовано два входа, один с крыльца в тамбур, а второй с террасы в совмещенную с гостиной кухню. Площадь террасы 18 м2, крыльца – 4,2 м2. Крыльцо и терраса крытые, огороженные.

Планировка первого этажа простая и удобная. Из тамбура можно попасть в котельную и холл. Холл переходит в кухню-гостиную (15,96 м2), здесь же лестница на второй этаж и двери в санузел и спальню (8,87 м2).

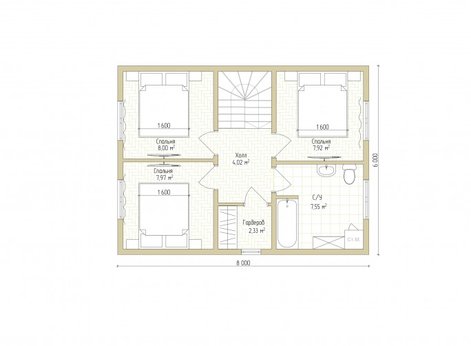
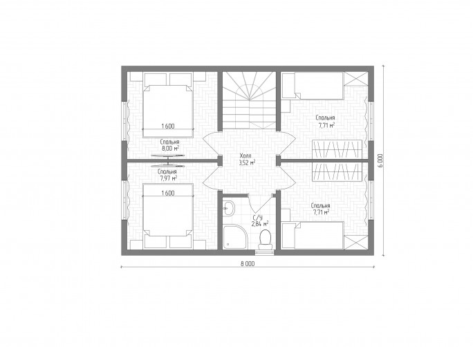
На втором этаже планировка классическая – небольшой холл, три спальни (7,84 м2 каждая), санузел и небольшая гардеробная. Отметим, что гардеробная сделана благодаря надстройке, которая придала дому более законченный вид, а гардеробной позволила избежать специфических особенностей мансардного дома.

Вас может заинтересовать
Вас может заинтересовать

Выбор местоположения

Задать вопрос / написать нам

E-mail: domgis@mail.ru

Мы свяжемся с Вами в течение дня.

Тех. поддержка
Предмет обращения:
Тукущая страница

Мы свяжемся с Вами в течение дня.

Уведомление
Предмет обращения:
Тукущая страница
Обратный звонок
Обратный звонок
Выберите ваш город
Пожаловаться

Объявление опубликовано.
Изменения сохранены

Период публикации - бессрочный, при условии подтверждения актуальности каждые 50 дней. Уведомления будут отправляться на Вашу электронную почту.

Выберите причину снятия с публикации

Снятые с публикации объявления не участвуют в поиске и недоступны для подробного просмотра.

Для повторной публикации нажмите «Вернуть в публикацию»