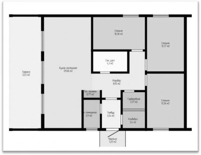
Барнхаус 115 м² — это современный одноэтажный дом в стиле барн, который гармонично сочетает в себе функциональность и эстетику.
Этот дом станет отличным выбором для тех, кто ценит комфорт, практичность и современный дизайн. Он идеально подходит как для постоянного проживания, так и для загородного отдыха, сочетая в себе все необходимые удобства для комфортной жизни.
Комплектации:
ДОМОКОМПЛЕКТ 1 706 500 р.
СТАНДАРТ 4 900 000 р.
КОМФОРТ 6 900 000 р.
КОМФОРТ+ 8 000 000 р.
Выбор местоположения
Мы свяжемся с Вами в течение дня.