ОДНОЭТАЖНЫЙ ЖИЛОЙ ДОМ 130,9 м2 №174

Цена строительства от 4 200 000 ₽* * Стоимость не является окончательной
Заявка на консультацию
  • Общая площадь 131 м2
  • Длина 11.91 м
  • Ширина 8.42 м
  • Материал стен Газобетон/пеноблок
  • Количество этажей 1
  • Подвал Нет
  • Мансарда Имеется
  • Гараж Нет
  • Терраса Нет
  • Проживание Круглогодичное
  • Количество комнат 5
  • Количество спален 4
  • Количество санузлов 2
  • Вид проекта дом
  • Застройщик ПСК Дом
  • Крыша Двускатная
  • Можно купить домокомплект Да
  • Модульный тип строения Нет
Планировки
Описание проекта

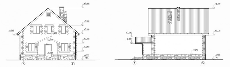
Один из самых востребованных проектов! Размеры дома 9,2 х 9,2 м. Высота 1 этажа 2,73; 2 этажа 2,78 м. В доме: 1 этаж - тамбур 4,3; прихожая 10,2; гостиная 20,8 объеденена с кухней 11; жилая комната 14,8; санузел 3,5; котельная 6 м.кв. 2 этаж - коридор 6,1; кладовая 2; 3 жилые комнаты 16,9/14,5/14,8; санузел 6 м.кв.

Фундамент - свайный ленточный. Пол бетонный. Перекрытие - ж/б плиты. Кровля мансардная. Сроки строительства: фундамент - 5-6 дн; набор достаточной прочности бетоном (НДПБ) - 7 дн; кладка наружных и внутренних стен 1 этажа- 5 дн; устройство армопояса - 1 дн; НДПБ - 5 дн; монтаж ж/б ПП и устройство армопояса вокруг плит - 1 дн; НДПБ - 3 дн+ устройство монолитного пола; кладка наружных и внутренних стен 2 этажа с устройством армопояса- 5 дн; НДПБ - 5 дн; устройство кровли - 5-7 дн. Итого 39 дней​

Ориентировочная стоимость проекта из Термоблока 40см. под отделку на 2022г с учетом выгребной ямы и заведенной водой - 4 200 000 рублей. Предоставим партнеров по инженерным сетям (газ, электрика, тепло-водоснабжение), остекление, отделка

РАЗМЕР КОМНАТ:

  • Тамбур - 4,3 м2
  • Прихожая - 10,2 м2
  • Гостиная - 20,8 м2
  • Кухней - 11 м2
  • Жилая комната - 14,8 м2
  • Санузел - 3,5 м2
  • Котельная - 6 м2
  • Коридор - 6,1 м2
  • кладовая - 2 м2
  • Комната 1 - 16,9 м2
  • Комната 2 -14,5 м2
  • Комната 3 -14,8 м2
  • Санузел - 6 м2

СРОК СТРОИТЕЛЬСТВА - 39 дней

СТОИМОСТЬ:

Домокомплект толщиной 40 см - 924 967 ₽

СТОИМОСТЬ ПОД САМООТДЕЛКУ:

Стоимость дома под самоотделку (толщиной 40 см) - 4 200 000 ₽

Вас может заинтересовать
Вас может заинтересовать

Выбор местоположения

Задать вопрос / написать нам

E-mail: domgis@mail.ru

Мы свяжемся с Вами в течение дня.

Тех. поддержка
Предмет обращения:
Тукущая страница

Мы свяжемся с Вами в течение дня.

Обратный звонок
Обратный звонок
Выберите ваш город
Пожаловаться

Объявление опубликовано.
Изменения сохранены

Период публикации - бессрочный, при условии подтверждения актуальности каждые 50 дней. Уведомления будут отправляться на Вашу электронную почту.

Выберите причину снятия с публикации

Снятые с публикации объявления не участвуют в поиске и недоступны для подробного просмотра.

Для повторной публикации нажмите «Вернуть в публикацию»