Геометрия минимализма и стиля
Дом с лаконичным дизайном, где четкие линии и простые формы гармонично вписываются в природный ландшафт. Панорамные окна размывают границы между интерьером и природой, наполняя дом светом и свежестью. Просторная планировка предусматривает всё необходимое для комфортной жизни семьи, включая места для отдыха и общения. Использованные материалы отличаются долговечностью и экологичностью, что делает дом не только стильным, но и практичным. Архитектурное решение подчёркивает актуальные тренды минимализма, создавая идеальное пространство, для тех, кто ценит гармонию природы и современный дизайн.
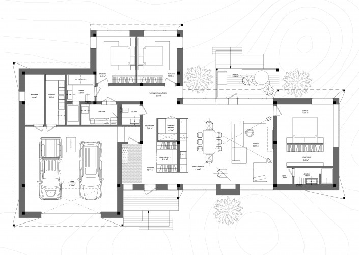
Планировка дома | функциональное зонирование
Планировка дома разработана с учётом различных потребностей и предполагает гибкость для создания идеального пространства. Вы можете оставить предложенную планировку, которая уже оптимизирована для удобства, или мы можем откорректировать её под определённые параметры и Ваши запросы.
Изменение количества жилых комнат: при необходимости можно добавить комнаты для гостей, детей или рабочего кабинета, или уменьшить их количество, сохранив функциональность.
Гараж и место для машины: вы можете добавить или убрать гараж в зависимости от ваших нужд. Если нужен только паркинг, мы создадим удобное место для одной или нескольких машин.
Дополнительные хозяйственные помещения: мы можем добавить кладовые, прачечные и другие помещения в планировку, для повышения удобства и функциональности вашего дома.
Изменение площади общего пространства: мы можем адаптировать размеры гостиной или кухни, увеличивая или уменьшая их для создания комфортного интерьера.
Мы готовы адаптировать проект дома и его расположение под особенности вашего участка. Это может включать:
- изменение ориентации дома для максимального использования солнечного света.
- расположение дома против ветра/севернее/южнее.
- размещение дома на участке, в зависимости от въезда и так далее.
Мы стремимся создать комфортное пространство, которое будет соответствовать всем вашим пожеланиям.
Выбор местоположения
Мы свяжемся с Вами в течение дня.