Построим гараж на вашем участке!

Опубликовано: 26.12.2025

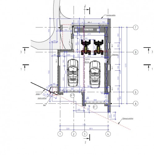
Предлагаем строительство современного гаража на два автомобиля под ключ — удобное, надёжное и эстетичное решение, идеально вписывающееся в ваш участок.

Характеристики

  • Общая площадь 85 м2
  • Длина 15 м
  • Ширина 7.8 м
  • Материал стен Газобетон


Выбор местоположения

Задать вопрос / написать нам

E-mail: domgis@mail.ru

Мы свяжемся с Вами в течение дня.

Тех. поддержка
Предмет обращения:
Тукущая страница

Мы свяжемся с Вами в течение дня.

Уведомление
Предмет обращения:
Тукущая страница
Обратный звонок
Обратный звонок
Выберите ваш город
Пожаловаться

Объявление опубликовано.
Изменения сохранены

Период публикации - бессрочный, при условии подтверждения актуальности каждые 50 дней. Уведомления будут отправляться на Вашу электронную почту.

Выберите причину снятия с публикации

Снятые с публикации объявления не участвуют в поиске и недоступны для подробного просмотра.

Для повторной публикации нажмите «Вернуть в публикацию»